foto Rodinné domy Stříbrná Skalice - after

Rodinné domy Stříbrná Skalice

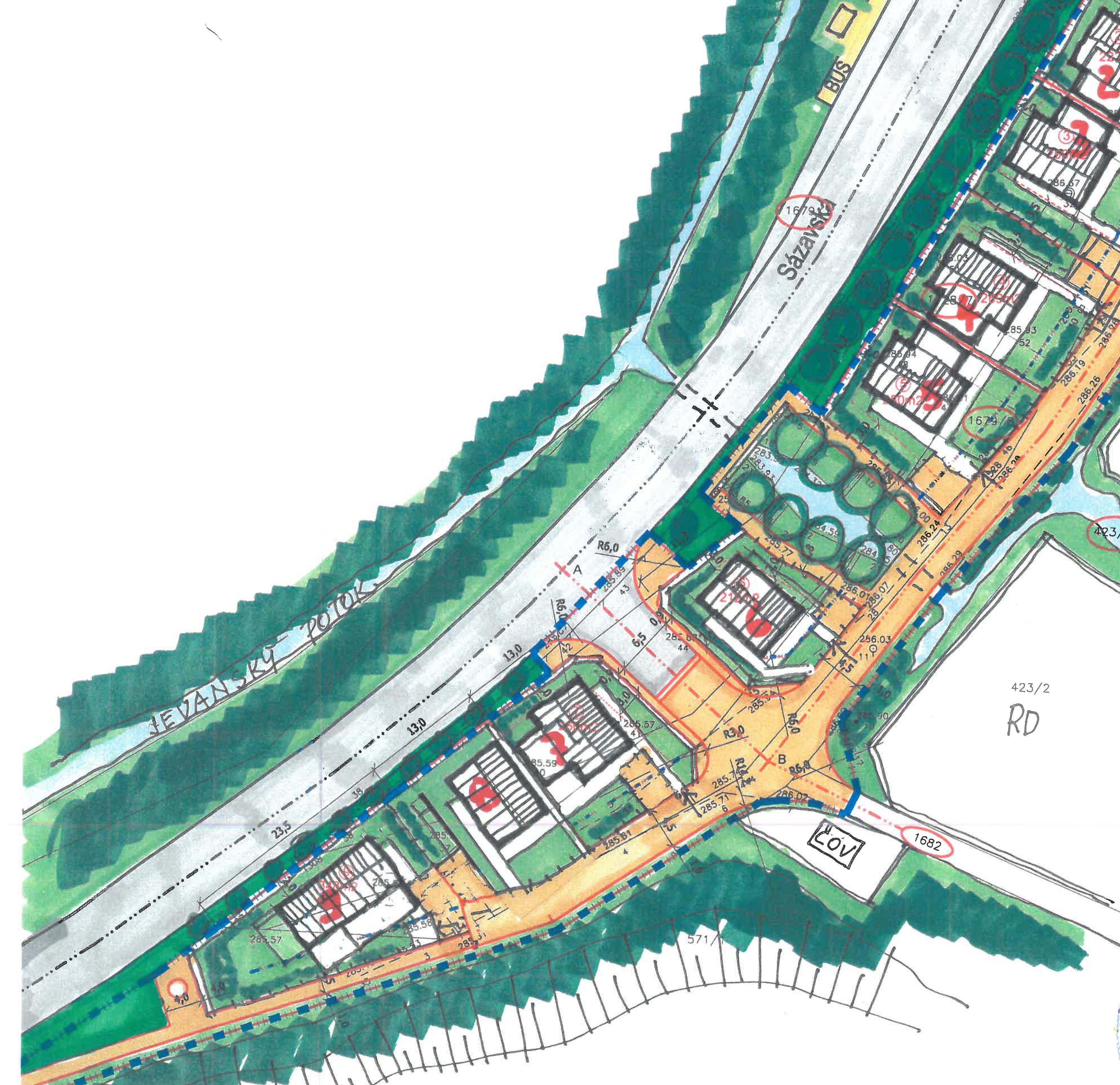
Výstavba souboru 9 rodinných domů ve Stříbrné Skalici.

Místo realizace: Stříbrná Skalice

Termín realizace: zahájení leden 2026

Zakázka je nyní realizována.

Zpět na reference